Ngôi nhà 160 m² tại TP.HCM lấy cảm hứng từ đường cong xe Vespa

Ngôi nhà 160 m² tại TP.HCM lấy cảm hứng từ đường cong xe Vespa
3 giờ trướcBài gốc
Tại TP.HCM, Vesp house là công trình nhà ở gây ấn tượng bởi câu chuyện cá nhân của gia chủ cùng cách tổ chức không gian giàu cảm xúc, đề cao sự gắn kết gia đình. Công trình được xây dựng trên khu đất rộng 160 m², hoàn thành năm 2025.
Clip công trình Vesp House.
Chủ nhân của Vesp house là một chàng trai trẻ có niềm đam mê đặc biệt với những chiếc Vespa cổ. Trước khi lập gia đình, anh cùng bạn bè thường xuyên rong ruổi khắp các tỉnh thành Việt Nam trên những chuyến đi dài. Khi xây nhà, gia chủ mong muốn tạo nên không gian cho vợ chồng, bố mẹ, bà và em gái cùng chung sống, đồng thời giữ lại tinh thần tự do, hoài niệm gắn liền với Vespa.
Mặt tiền Vespa house với những đường cong mềm mại được lấy cảm hứng từ dòng xe Vespa cổ huyền thoại.
Về tổng thể, kiến trúc sư Story Architecture thiết kế hình khối kiến trúc và nội thất của công trình lấy cảm hứng từ những đường cong mềm mại của xe Vespa. Bảng màu xi măng kết hợp gỗ mang lại cảm giác ấm áp, nhẹ nhàng và hoài niệm, phản ánh rõ cá tính gia chủ cũng như tinh thần của ngôi nhà.
Vesp house nổi bật giữa khu phố tại TP.HCM nhờ sự kết hợp tinh tế giữa vật liệu xi măng và gỗ.
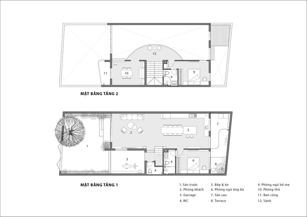
Ngôi nhà được lùi về phía sau để tạo khoảng sân trước trồng cây xanh, đồng thời là không gian trưng bày và chăm sóc những chiếc Vespa yêu thích. Tầng một bố trí phòng khách và bếp, trong đó khu vực bếp sử dụng sàn mở nhằm tăng cường ánh sáng tự nhiên.
Khoảng sân trước rộng rãi vừa là mảng xanh vừa là nơi gia chủ chăm sóc và trưng bày niềm đam mê xe cổ.
Bếp và bàn ăn là trung tâm sinh hoạt của gia đình, được thiết kế thông tầng xuyên suốt lên mái giúp không gian luôn thoáng đãng. Hệ hành lang, cửa sổ và ban công các tầng đều hướng về khoảng thông tầng này, tạo sự kết nối liền mạch giữa các không gian và tăng tính gắn kết giữa các thành viên
Sự kết nối liền mạch giữa phòng khách và bếp tạo ra một không gian sinh hoạt chung rộng rãi cho gia đình nhiều thế hệ.
Khu vực bếp và bàn ăn được thiết kế mở, trở thành trung tâm gắn kết mọi thành viên trong gia đình.
Từ bàn ăn, các thành viên có thể dễ dàng quan sát và tương tác với các không gian khác nhờ thiết kế mở và hệ thông tầng xuyên suốt.
Nội thất bếp ưu tiên vật liệu gỗ ấm áp, mang lại cảm giác gần gũi trong mỗi bữa cơm gia đình.
Khoảng thông tầng xuyên suốt từ bếp lên mái giúp ngôi nhà luôn tràn ngập ánh sáng tự nhiên và gió trời
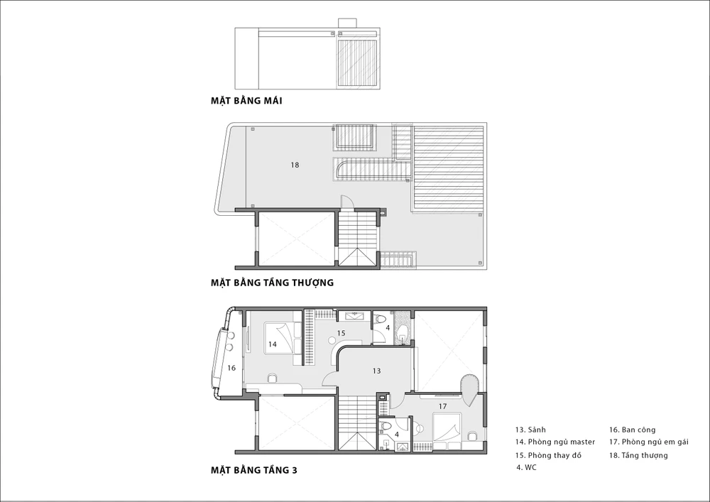
Tầng hai là không gian sinh hoạt của bố mẹ, kết hợp phòng thờ được thiết kế thông tầng lên mái, đảm bảo sự trang trọng và phù hợp yếu tố tâm linh. Phòng ngủ của em gái và gia chủ được bố trí ở tầng ba.
Hệ hành lang các tầng đều hướng về khoảng thông tầng, tạo sự kết nối thị giác giữa các thế hệ cùng chung sống.
Khung cửa được tạo hình như cửa lều, cho phép gia chủ kéo rèm để tận hưởng khung cảnh thiên nhiên và cây xoài cổ thụ được giữ lại trên khu đất. Ban công phòng ngủ cũng được thiết kế như không gian thư giãn để thưởng thức cà phê và tìm lại khoảnh khắc riêng tư.
Cách tổ chức không gian khéo léo đáp ứng nhu cầu sống riêng tư nhưng vẫn gần gũi của gia đình bốn thế hệ.
Phòng ngủ tầng ba với khung cửa kính lớn, gợi nhớ trải nghiệm thức dậy giữa thiên nhiên trong những chuyến đi xa.
Góc ban công riêng tư là nơi lý tưởng để thưởng thức cà phê và tìm lại sự cân bằng sau ngày làm việc.
Thiết kế "cửa lều" độc đáo giúp gia chủ tận hưởng trọn vẹn khung cảnh bầu trời và tán cây cổ thụ.
.
THU TRINH
Nguồn PLO : https://plo.vn/ngoi-nha-160-m-tai-tphcm-lay-cam-hung-tu-duong-cong-xe-vespa-post888295.html